3층 포스팅을 올려야 하는데, pc방을 못가 렌더링을 못 돌렸네요. 그래서 오늘은 하루 쉽니다. ^^;; 집 컴으로는 너무 느려서 설계만 주로 하고 렌더링은 pc방에서 합니다. ^^;;;;;
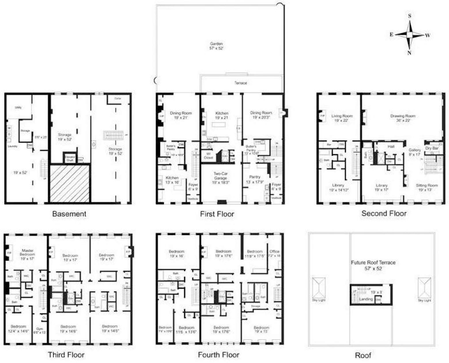
그리고 3번째 타운하우스 역설계(?)를 진행 중입니다. 인터넷에서 받아온 타운하우스 평면도 중에 마돈나의 맨해튼 타운하우스 평면도가 있더군요. 이 집은 3채의 타운하우스를 한 채로 튼 말 그대로 저택 그 자체입니다!
다만 내부 평면도가 정확하지 않은 듯하여, 내부 구성은 저의 취향(?)에 맞도록 변경 중입니다. 원본 평면도와 시험용으로 돌려본 랜더링 이미지 몇 장 올려봅니다.




'11. 내 맘대로 집 설계 > 11-1. 내 맘대로 프로젝트' 카테고리의 다른 글
| 뉴욕 타운하우스 (107 East)-08.총개요 (작업파일, 외관이미지) (0) | 2020.05.29 |
|---|---|
| 뉴욕 타운하우스 (107 East)-07.옥상층 (+옥탑) (0) | 2020.05.28 |
| 뉴욕 타운하우스 (107 East)-06.5층 (0) | 2020.05.27 |
| 뉴욕 타운하우스 (107 East)-05.4층 (0) | 2020.05.26 |
| 뉴욕 타운하우스 (107 East)-04.3층 (0) | 2020.05.25 |
| 뉴욕 타운하우스 (107 East)-03.2층 (0) | 2020.05.22 |
| 뉴욕 타운하우스 (107 East)-02.1층 (0) | 2020.05.21 |
| 뉴욕 타운하우스 (107 East)-01.지하층 (0) | 2020.05.20 |
| 6층 짜리 뉴욕 타운하우스 새로 시작했습니다. (0) | 2020.05.19 |
| 뉴욕 타운하우스 (422East) - 완료 및 렌더링은 과감히 포기! (0) | 2020.05.18 |